Mietwohnung im 1. Obergeschoss:
Ferienwohnung Hasliberg, Familienferien
Ruhige, sonnige Lage am Dorfrand in Hasliberg-Reuti. Autozufahrt bis zum Haus, mit Abstellplatz.
Zehn Gehminuten zu Lebensmittelgeschäft, Bushaltestelle und Bergbahnen im Ski-und Wandergebiet Meiringen-Hasliberg.
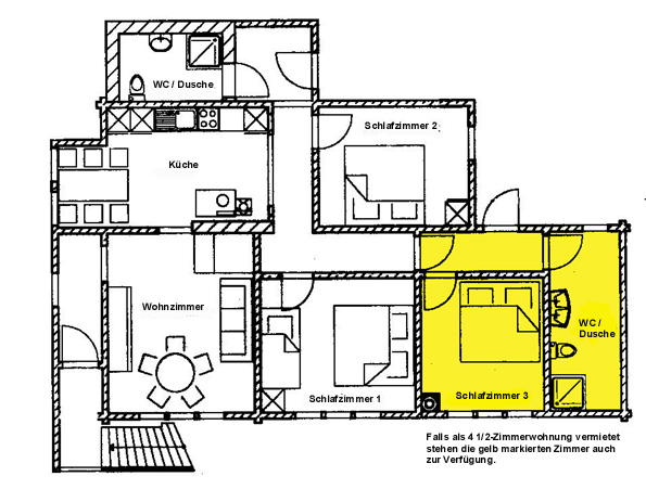
3 ½ bis (4 ½)-Zimmerwohnung mit Wohnzimmer, 1 bis (2) Duschen / WC, 2 bis (3) Schlafzimmer mit total 5 bis (7) Betten. Komfortable Küche mit Kühlschrank, Gefrierfach und Geschirrspüler. Zentralheizung und Holzfeuerung.
Radio und Fernseher. Terrasse, Gartensitzplatz mit Grill und Kinderspielplatz
Anreise ab 15.00 Uhr
Abreise bis 10.00 Uhr

